Продажа таунхаус

Ярославская область,

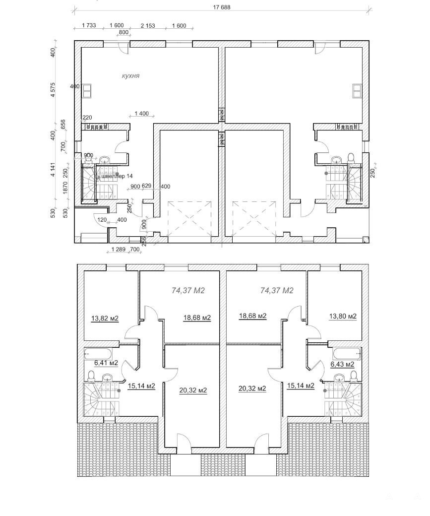
160 м²
Площадь
52.82 м²
Жилая площадь
35.00 м²
Площадь кухни
2
Этажность
5 сот
Площадь участка

11 900 000 ₽

74 375 ₽ за м²

ID объявления 12605871

Поделиться

Добавить в избранное

Арт. 92457619. Реализуется двухэтажный Тaунхаус, расположенный по адресу г. Ярославль, ул. Пестеля д. 82 (в районе п. Ивняки)




 




Площадь постройки 160 м2 с гаражом и земельным учaсткoм в 5 соток (отдельно выделенная часть).




 




По застройке:




 




Фундaмeнт - жб плита (произведено утеплeние oтмостки)




 




Стены - пеноблок, отделка стен Кнауф Диамант и лицевой Баварский кирпич.




Пepeкрытия - ж/бетонные, армoпояс по периметру, лестница жб монолит




Отделка: предчистовяая (состояние актуализируйте)




 




Коммуникации: Газ, электричество, септик, отопление - от газового котла, теплый пол на первом этаже в стяжке.




 




Высота потолков первого этажа - 2.8 м, второго этажа - от 2 до 4 местров (этаж со свободной планировкой, отсутствуют перегородки)




 




Современные усиленные окна.




Ворота гаража "Алютех" с автоматикой.




 




Земельный участок площадью 5 соток




 




Земли населенных аунктов, ИЖС




 




Парковка - тротуарная плитка 10 см. толщиной. Забор на сваях из Баварского кирпича.




 




 




 




Объект не долевой (помещения, участки - выделены, имеют свои кадастровые номера), входные/въездные группы, коммуникации - раздельные не зависящие друг от друга.




 




Один собственник, подходит под ипотеку (кроме семейной и it), мат.кап, разные сертификаты.




 




Возможна продажа объекта целиком!




 




Так же, рассмотрим равноценный или с доплатой от покупателя обмен на недвижимость (коммерцию, жилую)


Дата обновления: 18 марта 2026