Продажа 2х-комнатной квартиры

63 м²
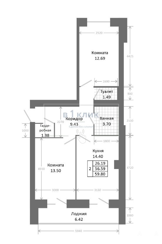
Площадь
26.19 м²
Жилая площадь
14.40 м²
Площадь кухни
6/9
Этаж

8 671 000 ₽

137 614 ₽ за м²

ID объявления 12333884

Поделиться

Добавить в избранное

Стартовала продажа квартир от надежного застройщика.
Строят качественно!

Дом- кирпичный.

ИНДИВИДУАЛЬНОЕ ГАЗОВОЕ ОТОПЛЕНИЕ., о преимуществах и экономии рассказывать уже не приходится.

Не угловая!

Рядом остановка общественного транспорта. В непосредственной близости находится 4 детских сада, школа, поликлиники, фитнес клубы, аквапарк.

Крупный гипермаркет Лента, а также благоустроенный парк СудостроителейСрок сдачи III квартал 2026

МОЛОДОЖЕНАМ приятная СКИДКА!

Планировки квартир максимально комфортные, чтобы можно было задействовать каждый квадратный метр. Все жилые помещения сдаются с отделкой, в которую входит проведение следующих ремонтных работ:

• штукатурка стен машинного нанесения;
• стяжка на полах, плитка на полу в санузлах;
• установка сантехники в санузле;
• монтаж отопительной системы и установка радиаторов;
• подводка систем коммуникации;

• индивидуальное газовое отопление, установка мойки и газовой плиты на кухне;
• установка двухкамерных окон ПВХ и остекление лоджий;
• монтаж входных дверей.




Звоните прямо сейчас, чтобы договориться о просмотре и выбрать свою идеальную квартиру!




преимущества:

- Никаких скрытых рисков.

- Сопровождение на всех этапах.

- Помощь с одобрением ипотеки, сотрудничая с нами у вас больше шансов на ее получение с более выгодными условиями.

- Экономия вашего времени и нервов в эксклюзивном подборе.

- Сопровождение от нашего агентства клиенту ВСЕГДА Бесплатно.

В НАШЕМ ПРОФИЛЕ ТОЛЬКО АКТУАЛЬНЫЕ ОБЪЕКТЫ

ДОБАВЬТЕ ПРЕДЛОЖЕНИЕ В ИЗБРАННОЕ, ЧТОБЫ СЛЕДИТЬ ЗА АКТУАЛЬНОЙ ЦЕНОЙ И ПОЛУЧАТЬ УНИКАЛЬНЫЕ ПРЕДЛОЖЕНИЯ!

А лучше не стесняйтесь, звоните, все обсудим и быстрее забронируем понравившийся объект, цену нужно успеть зафиксировать, не откладывайте.





Дата обновления: 24 декабря 2025