Продажа 1-комнатной квартиры

52 м²
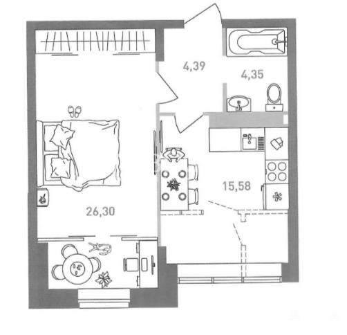
Площадь
26.4 м²
Жилая площадь
15 м²
Площадь кухни
19/24
Этаж

5 650 000 ₽

109 709 ₽ за м²

ID объявления 12388146

Поделиться

Добавить в избранное

Представляем вашему вниманию уютную и светлую квартиру на высоком этаже, которая станет идеальным решением для комфортной жизни в динамичном городе. Это просторная однокомнатная квартира общей площадью 51, 5 кв. м., расположенная на 19-м этаже 24-этажного монолитного дома в престижном жилом комплексе бизнес-класса «Ярославль Сити» на Московском проспекте.

Квартира продаётся с качественной черновой отделкой, что открывает простор для реализации ваших дизайнерских идей. Уже выполнены все основные работы: установлена надёжная железная входная дверь, залита ровная стяжка пола со слоем шумопоглощающего пенопола, смонтированы радиаторы отопления. Особое внимание привлекают увеличенные двухкамерные стеклопакеты во всех помещениях, обеспечивающие обилие естественного света и великолепный вид. Все створки открывающиеся, одна из них — поворотно-откидная, а на стёкла нанесена солнцезащитная плёнка. Конструкция оконного проема даёт возможность при желании легко и быстро оборудовать утеплённую лоджию.

Планировка квартиры продумана: жилая площадь составляет 26, 4 кв. м., а просторная кухня — 15 кв. м., что позволяет с комфортом разместить обеденную зону. Высота потолков 2, 75 метра создаёт ощущение простора, а толщина межквартирных стен в 250 мм гарантирует тишину и покой. Объект обладает потенциалом для перепланировки, позволяя адаптировать пространство под индивидуальные потребности.

Квартира находится в собственности у одного взрослого человека, не обременена ипотекой или другими обязательствами, в ней никто не прописан, что обеспечивает быстрый и безопасный выход на сделку.

Жилой комплекс окружён развитой инфраструктурой: в шаговой доступности расположены магазины, школа и детский сад. Отличная транспортная доступность обеспечена благодаря автобусной остановке прямо у дома. Это предложение — уникальный шанс приобрести современное жильё в готовом доме на одной из главных магистралей города.

Остались вопросы - Звоните!
id:72330. - Безопасность
- Лучшие юристы окажут полное сопровождение на всех этапах купли/продажи
- Качество и Профессионализм. Наши специалисты признаны лучшими по уровню сервиса порталов.
- Надежность и экономия. Мы являемся ключевыми партнерами всех ведущих банков. Личный ипотечный брокер выберет для Вас оптимальную программу ипотеки.
- Прозрачность. Фиксированное агентское вознаграждение. Оплата только после совершения сделки.
- Комфорт. Весь комплекс услуг купли/продажи. Формат "одного окна" в одном офисе в центре города
- Уверенность. Мы входим в ТОП- 25 ведущих агентств недвижимости РФ по версии рекламных площадок.

Сделка с недвижимостью - работа профессионалов.

Вместе создаем наследие.

Дата обновления: 3 февраля 2026