Продажа 1-комнатной квартиры

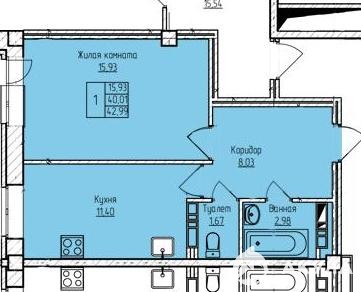
26 м²
Площадь
14.02 м²
Жилая площадь
5.20 м²
Площадь кухни
7/9
Этаж

2 620 000 ₽

100 039 ₽ за м²

ID объявления 12401781

Поделиться

Добавить в избранное

Продается 1к квартира во Фрунзенском районе! 

Квартира выполнена качественными материалами, представленными в отделке «GrayKey». В нее входит: возведение внутриквартирных перегородок, оштукатуривание кирпичных стен, пластиковые окна с пятикамерными профилями стеклопакетов, просторные лоджии во двор, французские окна в сторону ул. Дятьковская и другое

Преимущества:
- современные лифты обеспечат высокий уровень комфорта жильцам дома;
- доступная среда: подъем с уровня земли на 1 этаж осуществляется на специальном подъемнике;
- автоматизированный тепловой пункт с датчиками температуры;
- умный домофон от Ростелеком;
- кладовые в подвале обеспечат жильцов дополнительным пространством для хранения вещей, освобождая жилую площадь от лишних предметов;
- специально оборудованные места для тренировок Street Workout, места для отдыха, детская площадка;
- озеленение территории, цветущие кустарники, газоны и цветники;

Благоустройство:
Жилой комплекс предлагает комфортное проживание благодаря продуманному благоустройству. В комплексе есть детская и спортивная площадки для активного отдыха. Понижающие площадки и инвалидный подъёмник обеспечивают доступность пространства для всех жителей. Площадки для мусорных контейнеров расположены удобно. Для гостей предусмотрено 21 машиноместо. Безопасность и комфорт жителей в комплексе обеспечены.
Инфраструктура района:
Дом расположен в новой, развивающейся части Фрунзенского района города Ярославля, в 15 минутах езды до центра.

Рядом с домом находятся:
- парк Судостроителей, по которому вы сможете погулять сами или с со своими домашними животными, на детских площадках парка будет интересно детям;
- спортивная школа олимпийского резерва №19, которая является одним из ведущих спортивных учреждений г. Ярославля;
- гипермаркет «Лента», обеспечит удобный доступ к широкому ассортименту товаров и услуг без необходимости долгих поездок;
- аквапарк «Тропический остров», предоставляет возможность наслаждаться активным отдыхом и развлечениями прямо «у порога».
Кроме того, в непосредственной близости от дома расположены офисы банков, торговые центры, магазины, школы, детские сады и многое другое, что обеспечит удобство и доступность различных услуг и инфраструктуры для жителей дома.

Разные варианты приобретения: ипотека, рассрочка без удорожания, наличные.

Остались вопросы? Звоните!

 
id:73448. - Безопасность
- Лучшие юристы окажут полное сопровождение на всех этапах купли/продажи
- Качество и Профессионализм. Наши специалисты признаны лучшими по уровню сервиса порталов.
- Надежность и экономия. Мы являемся ключевыми партнерами всех ведущих банков. Личный ипотечный брокер выберет для Вас оптимальную программу ипотеки.
- Прозрачность. Фиксированное агентское вознаграждение. Оплата только после совершения сделки.
- Комфорт. Весь комплекс услуг купли/продажи. Формат "одного окна" в одном офисе в центре города
- Уверенность. Мы входим в ТОП- 25 ведущих агентств недвижимости РФ по версии рекламных площадок.

Сделка с недвижимостью - работа профессионалов.

Вместе создаем наследие.

Дата обновления: 25 марта 2026

Квартира Ипотека