Продажа 1-комнатной квартиры

42 м²
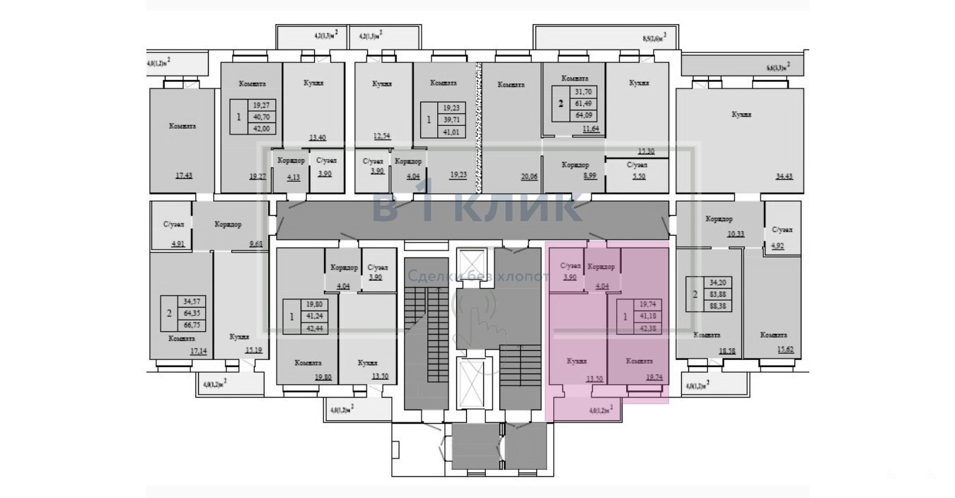
Площадь
19.74 м²
Жилая площадь
13.50 м²
Площадь кухни
12/12
Этаж

6 060 340 ₽

143 000 ₽ за м²

ID объявления 12265734

Поделиться

Добавить в избранное

СВОЯ КВАРТИРА В 7 МИНУТАХ ОТ ЦЕНТРА ГОРОДА!

В Ленинском районе г. Ярославля на пересечении ул. Чкалова и ул. Белинского.

Отделка White Box: стены штукатурка, потолки железобетонная плита, полы полусухая цементно-песчаная стяжка, скрытая электропроводка с розетками и выключателями, система отопления с радиаторами, стояки холодного и горячего водоснабжения с приборами учета, канализационный стояк, окна ПВХ, входная дверь.

В каждом подъезде предусмотрены два лифта.

Рядом располагаются теннисный клуб «Волжанин», бассейн «Лазурный», легкоатлетический манеж «Ярославль», Дворец спорта «Торпедо», МОУ средняя школа N 9 имени Ивана Ткаченко, МДОУ N 204, N 184. Городской транспорт: трамваи, автобусы, маршрутные такси в 2 минутах ходьбы, автомобильная транспортная развязка через Добрынинский мост в Дзержинский и Заволжский районы, до центра города 5-10 минут.

Помощь с подачей ипотечной заявки в разные банки с самыми выгодными условиями.

Расчеты проводятся с использованием безопасных счетов эскроу.

Подходит под любые виды расчетов (ипотека/наличные/мат.капитал/любые виды сертификатов).

Помощь в реализации Вашей недвижимости.

Сопровождение сделки бесплатно!

Дата обновления: 29 ноября 2025

Квартира Ипотека