Аренда помещения свободного назначения

234 600 ₽/мес

602 ₽ за м²/мес.

390 м²
Площадь
1/6
Этаж

Поделиться

Добавить в избранное

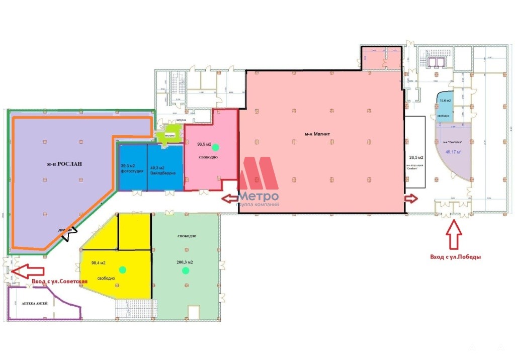
Арт. 90851277. Предлагаем в аренду помещение 391 кв.м. на 1ом этаже в торгово/деловом-центре по адресу: Ярославль, ул.Победы д.6 в ТЦ «Дом Моды».

В сумме аренды указана первоначальная льготная стоимость. Помещение свободно с 1 февраля 2026 г.



Помещение расположено при входе в здание со стороны ул.Советская, на внутреннем трафике в магазин МАГНИТ и ПВЗ Wildberries.
Возможно использование под торговлю, офисную деятельность, услуги. Высокие потолки, панорамные окна.

Электричество оплачивается по счетчикам.

В здании расположены: пункт выдачи «Wildberries», «Магнит», «Детский мир», детский развивающий центр "Леонардо парк", арена виртуальной реальности "WARРOINT". На 1-3 этажах здания расположены в основном торговля и услуги, на 4-6 этажи здания - офисы.

Развитая инфраструктура вокруг. Транспортная доступность (в шаговой доступности один из основных транспортных узлов города).

Две зоны парковки - платная перед фасадом здания (с возможностью приобретения абонементов по доступу на месяц) и бесплатная с торца здания.

--------------------------------------------------------------
Без комиссии, аренда от собственника!
--------------------------------------------------------------

ГК "Метро" - лидер рынка коммерческой недвижимости Ярославля. У нас самый большой портфель недвижимости и наибольшая выгрузка рекламы на отраслевых площадках.

--------------------------------------------------------------
1. Больше информации по телефону и в форме чата.
2. По запросу предоставим расширенный пакет фотографий, поэтажные планы и техническую документацию.
3. Для иногородних клиентов оперативно покажем объект по видеосвязи.
4. Приглашаем посредников к сотрудничеству на выгодных условиях.
5. Если этот объект не понравился по фотографиям и описанию - обращайтесь, предложим альтернативу.
6. Фиксируем звонки в режиме 24/7, для Вашего удобства работает контакт-центр.

Дата обновления: 20 января 2026