Аренда помещения свободного назначения

40 800 ₽/мес

1 200 ₽ за м²/мес.

34 м²
Площадь
1/6
Этаж

Поделиться

Добавить в избранное

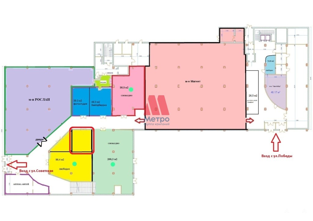
Арт. 89265281. Предлагаем в аренду помещение 34 кв.м. на 1ом этаже в торгово/деловом-центре по адресу: Ул.Победы д.6 в ТЦ «Дом Моды».

Торговый модуль расположен при входе здание, на внутреннем трафике в магазин МАГНИТ и ПВЗ Wildberries. Квадратная форма помещения, вход напротив входа в ПВЗ Wildberries.
Электричество по счетчикам.

Помещение свободно с 1 декабря 2025 г. (возможно по договоренности раньше).

В здании расположены: пункт выдачи «Wildberries», «Магнит», «Детский мир», детский развивающий центр "Леонардо парк", арена виртуальной реальности "WARРOINT". На 1-3 этажах здания расположены в основном торговля и услуги, на 4-6 этажи здания - офисы.

Развитая инфраструктура вокруг. Транспортная доступность (в шаговой доступности один из основных транспортных узлов города).
Две зоны парковки - платная перед фасадом здания (с возможностью приобретения абонементов по доступу на месяц) и бесплатная с торца здания.

--------------------------------------------------------------
Без комиссии, аренда от собственника!
--------------------------------------------------------------

ГК "Метро" - лидер рынка коммерческой недвижимости Ярославля. У нас самый большой портфель недвижимости и наибольшая выгрузка рекламы на отраслевых площадках.

--------------------------------------------------------------
1. Больше информации по телефону и в форме чата.
2. По запросу предоставим расширенный пакет фотографий, поэтажные планы и техническую документацию.
3. Для иногородних клиентов оперативно покажем объект по видеосвязи.
4. Приглашаем посредников к сотрудничеству на выгодных условиях.
5. Если этот объект не понравился по фотографиям и описанию - обращайтесь, предложим альтернативу.
6. Фиксируем звонки в режиме 24/7, для Вашего удобства работает контакт-центр.

Дата обновления: 19 декабря 2025