Аренда помещения свободного назначения

100 000 ₽/мес

1 429 ₽ за м²/мес.

70 м²
Площадь
1/2
Этаж

Поделиться

Добавить в избранное

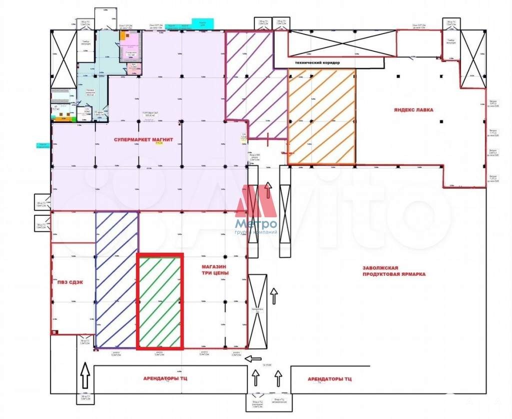
Арт. 89882586. Предлагаем в аренду помещение свободного назначения, общая площадь 70 кв.м. расположенное в ТЦ "Заволжский" по адресу: г. Ярославль, пр-кт Машиностроителей, д. 11Б.
На планировке выделен красной рамкой. Один вход будет рядом со кассовой зоной магазина Три Цены, возможно расширение помещения за счет соседних (заштрихованны на техплане) областей.
Отличительные особенности:
Трафиковый ТЦ. В ТЦ на 1м этаже находятся Магнит, магазин Три Цены, СДЭК и Фермерский рынок, магазин Суперэконом на 2 этаже.
Напротив входной группы ТЦ остановка общественного транспорта, хороший пешеходный и автомобильный трафик, в окружении большой жилой массив.

--------------------------------------------------------------
Без комиссии, аренда от собственника!
--------------------------------------------------------------
ГК "Метро" - лидер рынка коммерческой недвижимости Ярославля. У нас самый большой портфель недвижимости и наибольшая выгрузка рекламы на отраслевых площадках.
--------------------------------------------------------------
1. Больше информации по телефону и в форме чата.
2. По запросу предоставим расширенный пакет фотографий, поэтажные планы и техническую документацию.
3. Для иногородних клиентов оперативно покажем объект по видеосвязи.
4. Приглашаем посредников к сотрудничеству на выгодных условиях.
5. Если этот объект не понравился по фотографиям и описанию - обращайтесь, предложим альтернативу.
6. Фиксируем звонки в режиме 24/7, для Вашего удобства работает контакт-центр.

Дата обновления: 7 декабря 2025