Аренда офисного помещения

1 050 000 ₽/мес

1 500 ₽ за м²/мес.

700 м²
Площадь
1/5
Этаж

Поделиться

Добавить в избранное

Арт. 92406713. Предлагается к аренде коммерческое помещение с витринной группой на ул. Свободы!

Можно арендовать вместе со вторым этажом!

Траффиковая улица, исторический центр, объект культурного наследия.

Характеристики помещения:
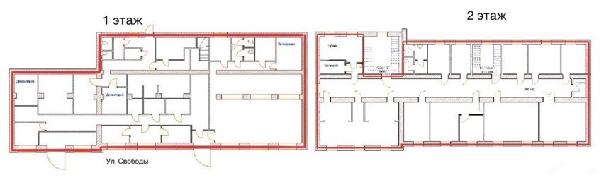
- Первый и второй этажи по 350 м кв.

- Отдельные входные группы с ул. Свободы.
- Высота потолков: 3, 4 м (до подвесного, там запас).
- Электрическая мощность: 90 кВт (будет 150 кВт).

Планировка и доступ:
- Две входные группы с улицы Свободы.
- Запасной и пожарный выходы на внутреннюю территорию.

Инфраструктура:
- Центральное водоснабжение (холодная вода).
- Горячая вода через бойлеры в санузлах.
- Собственный теплоузел для экономии на отоплении.

Оснащение:
- Пожарное оборудование, сигнализация, СКУД.
- Освещение.
- Частичная система видеонаблюдения.
- Система кондиционирования и вентиляции (кондиционер в каждом кабинете).
- Качественный базовый ремонт (ранее использовалось как банк).

На внутренней территории имеется парковка (платная).



#АРЕНДА

--------------------------------------------------------------
Без комиссии, аренда от собственника!
--------------------------------------------------------------

ГК "Метро" - лидер рынка коммерческой недвижимости Ярославля. У нас самый большой портфель недвижимости и наибольшая выгрузка рекламы на отраслевых площадках.

--------------------------------------------------------------
1. Больше информации по телефону и в форме чата.
2. По запросу предоставим расширенный пакет фотографий, поэтажные планы и техническую документацию.
3. Для иногородних клиентов оперативно покажем объект по видеосвязи.
4. Приглашаем посредников к сотрудничеству на выгодных условиях.
5. Если этот объект не понравился по фотографиям и описанию - обращайтесь, предложим альтернативу.
6. Фиксируем звонки в режиме 24/7, для Вашего удобства работает контакт-центр.

Дата обновления: 12 марта 2026