Аренда офисного помещения

504 900 ₽/мес

1 350 ₽ за м²/мес.

374 м²
Площадь
2/5
Этаж

Поделиться

Добавить в избранное

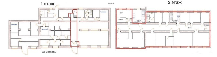
Арт. 92406635. Предлагается к аренде помещения на втором этаже дома № 2 по ул. Свободы!

МОЖНО СНЯТЬ С ПЕРВЫМ ЭТАЖОМ ВСЕ 700 м кв.!

Траффиковая улица, исторический центр, объект культурного наследия.

При аренде второго и первого этаж вместе (700 м кв.) по ценуточняйте отдельно.

В помещениях ремонт после банка: в кабинетах второго этажа - ковролин, коридор в плитке. Во всех кабинетах кондиционеры.

Характеристики помещения:
- 2 этаж: 360 м² с отдельной входной группой с ул. Свободы.
- Высота потолков: 3 м (до армстронга, а там еще запас).
- Электрическая мощность: 90 кВт (будет 150 кВт).

Планировка и доступ:
- Две входные группы: с улицы Свободы и с внутренней парковки.
- Запасной и пожарный выходы на внутреннюю территорию.

Инфраструктура:
- Центральное водоснабжение (холодная вода).
- Горячая вода через бойлеры в санузлах.
- Собственный теплоузел для экономии на отоплении.

Оснащение:
- Пожарное оборудование, сигнализация, СКУД.
- Освещение.
- Частичная система видеонаблюдения.
- Система кондиционирования и вентиляции (кондиционер в каждом кабинете).
- Качественный базовый ремонт (ранее использовалось под банк).

На внутренней территории имеется парковка (платная).

К/у оплачивает арендатор.



#АРЕНДА

--------------------------------------------------------------
Без комиссии, аренда от собственника!
--------------------------------------------------------------

ГК "Метро" - лидер рынка коммерческой недвижимости Ярославля. У нас самый большой портфель недвижимости и наибольшая выгрузка рекламы на отраслевых площадках.

--------------------------------------------------------------
1. Больше информации по телефону и в форме чата.
2. По запросу предоставим расширенный пакет фотографий, поэтажные планы и техническую документацию.
3. Для иногородних клиентов оперативно покажем объект по видеосвязи.
4. Приглашаем посредников к сотрудничеству на выгодных условиях.
5. Если этот объект не понравился по фотографиям и описанию - обращайтесь, предложим альтернативу.
6. Фиксируем звонки в режиме 24/7, для Вашего удобства работает контакт-центр.

Дата обновления: 12 марта 2026