Аренда офисного помещения

66 400 ₽/мес

800 ₽ за м²/мес.

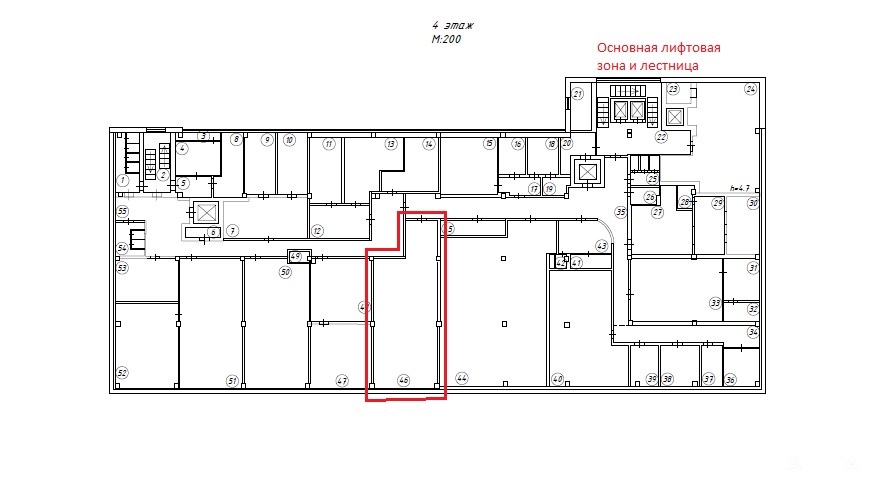
83 м²
Площадь
4/6
Этаж

Поделиться

Добавить в избранное

Арт. 93242329. --------------------------------------------------------------


Без комиссии, аренда от собственника!


--------------------------------------------------------------



Предлагаем в аренду офисное помещение 83 кв.м. на 4 этаже по адресу: Ул.Победы д.6 в ТЦ «Дом Моды».




Помещение актуально к аренде с мая 2026 года.


В стоимости аренды указана первоначальная льготная стоимость на несколько месяцев.



Окна выходят в сторону исторического ценра Ярославля.




Высокие потолки (4-5 м). Большие панорамные окна. Система кондиционирования.


Все коммуникации присутствуют. Пассажирские лифты в здании.





Высокий трафик! Развитая инфраструктура. Транспортная доступность. Собственная закрытая парковка.



--------------------------------------------------------------




ГК "Метро" - лидер рынка коммерческой недвижимости Ярославля. У нас самый большой портфель недвижимости и наибольшая выгрузка рекламы на отраслевых площадках.




--------------------------------------------------------------


1. Больше информации по телефону и в форме чата.


2. По запросу предоставим расширенный пакет фотографий, поэтажные планы и техническую документацию.


3. Для иногородних клиентов оперативно покажем объект по видеосвязи.


4. Приглашаем посредников к сотрудничеству на выгодных условиях.


5. Если этот объект не понравился по фотографиям и описанию - обращайтесь, предложим альтернативу.


6. Фиксируем звонки в режиме 24/7, для Вашего удобства работает контакт-центр.

Дата обновления: 11 апреля 2026