Аренда офисного помещения

114 240 ₽/мес

799 ₽ за м²/мес.

143 м²
Площадь
5/6
Этаж

Поделиться

Добавить в избранное

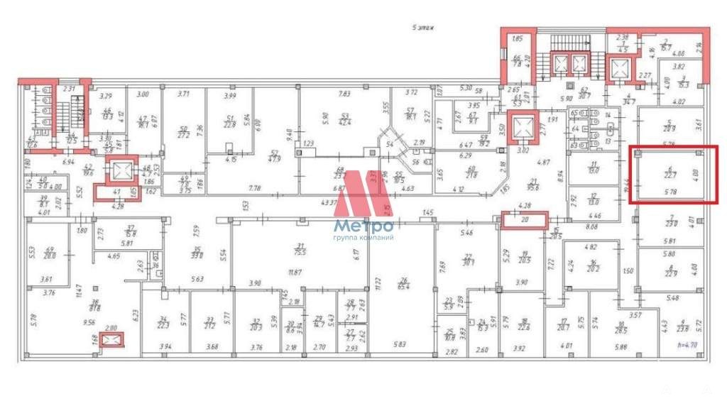
Арт. 89673896. Предлагаем в аренду офис 142, 8 кв.м. на 5ом этаже в торгово/деловом-центре по адресу: Ул. Победы д. 6 в ТЦ «Дом Моды».
Аренда актуальна с февраля 2026г. В сумме аренды указана первоначальная льготная стоимость.
Помещение открытой планировки. Внутри выделена переговорка. Есть возможность расширить площадь отдельным кабинетом 16, 5 кв.м. , который расположен напротив входа в основное помещение. Коммунальные платежи входят в стоимость аренды.
В здании расположены: пункт выдачи «Wildberries», «Магнит», «Детский мир», детский развивающий центр "Леонардо парк", арена виртуальной реальности "WARРOINT". На 1-3 этажах здания расположены в основном торговля и услуги, на 4-6 этажи здания - офисы.
Развитая инфраструктура вокруг. Транспортная доступность (в шаговой доступности один из основных транспортных узлов города) .
Две зоны парковки - платная перед фасадом здания (с возможностью приобретения абонементов по доступу на месяц) и бесплатная с торца здания.
--------------------------------------------------------------
Без комиссии, аренда от собственника!
--------------------------------------------------------------
ГК "Метро" - лидер рынка коммерческой недвижимости Ярославля. У нас самый большой портфель недвижимости и наибольшая выгрузка рекламы на отраслевых площадках.
--------------------------------------------------------------
1. Больше информации по телефону и в форме чата.
2. По запросу предоставим расширенный пакет фотографий, поэтажные планы и техническую документацию.
3. Для иногородних клиентов оперативно покажем объект по видеосвязи.
4. Приглашаем посредников к сотрудничеству на выгодных условиях.
5. Если этот объект не понравился по фотографиям и описанию - обращайтесь, предложим альтернативу.
6. Фиксируем звонки в режиме 24/7, для Вашего удобства работает контакт-центр.

Дата обновления: 20 января 2026