Аренда помещения свободного назначения

20 400 ₽/мес

1 200 ₽ за м²/мес.

17 м²
Площадь
1/6
Этаж

Поделиться

Добавить в избранное

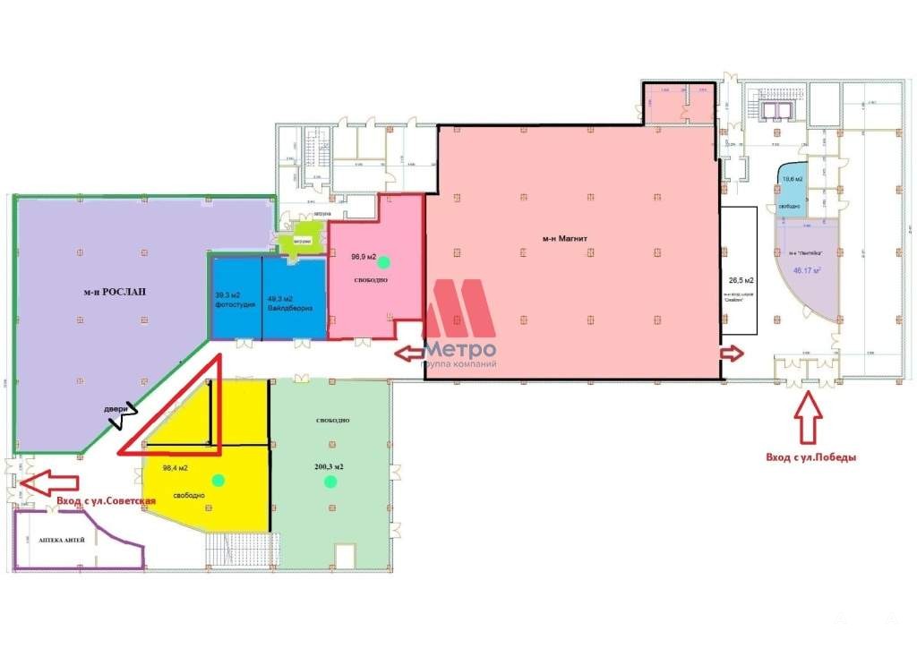
Арт. 89673896. Предлагаем в аренду помещение 17 кв.м. на 1ом этаже в торгово/деловом-центре по адресу: Ул. Победы д. 6 в ТЦ «Дом Моды».
Торговый модуль расположен при входе в здание со стороны ул. Советская, на внутреннем трафике в магазин МАГНИТ и ПВЗ Wildberries. Треугольная форма помещения. На техплане выделен красным контуром.
Электричество по счетчикам.
Помещение свободно с 1 декабря 2025 г. (возможно по договоренности раньше) .
В здании расположены: пункт выдачи «Wildberries», «Магнит», «Детский мир», детский развивающий центр "Леонардо парк", арена виртуальной реальности "WARРOINT". На 1-3 этажах здания расположены в основном торговля и услуги, на 4-6 этажи здания - офисы.
Развитая инфраструктура вокруг. Транспортная доступность (в шаговой доступности один из основных транспортных узлов города) .
Две зоны парковки - платная перед фасадом здания (с возможностью приобретения абонементов по доступу на месяц) и бесплатная с торца здания.
--------------------------------------------------------------
Без комиссии, аренда от собственника!
--------------------------------------------------------------
ГК "Метро" - лидер рынка коммерческой недвижимости Ярославля. У нас самый большой портфель недвижимости и наибольшая выгрузка рекламы на отраслевых площадках.
--------------------------------------------------------------
1. Больше информации по телефону и в форме чата.
2. По запросу предоставим расширенный пакет фотографий, поэтажные планы и техническую документацию.
3. Для иногородних клиентов оперативно покажем объект по видеосвязи.
4. Приглашаем посредников к сотрудничеству на выгодных условиях.
5. Если этот объект не понравился по фотографиям и описанию - обращайтесь, предложим альтернативу.
6. Фиксируем звонки в режиме 24/7, для Вашего удобства работает контакт-центр.

Дата обновления: 28 ноября 2025